57+ How Many Square Feet Is A 30 60 House Plan

Ads

When it comes to designing your dream home, understanding the dimensions and layout of various house plans is crucial. One popular option that many homeowners consider is the 30x60 house plan, which offers a unique blend of space and functionality. But just how many square feet does a 30x60 house plan encompass? In this blog post, we’ll delve into the specifics, exploring the total square footage, potential room layouts, and the benefits of choosing this particular design. Whether you're a first-time builder or looking to downsize, understanding the square footage of a 30x60 house plan can help you make informed decisions for your future home.

30 Feet By 60 Feet 30×60 House Plan

When considering a 30 feet by 60 feet house plan, which equates to a total area of 1,800 square feet, you open the door to a versatile living space that can be tailored to fit various lifestyles and family needs. This layout typically allows for a spacious open-concept design, ideal for modern living, with ample room for multiple bedrooms, bathrooms, and communal areas. The 30x60 house plan is particularly appealing for those looking to maximize their square footage without sacrificing comfort, making it suitable for small families or even as a vacation home. With the right design choices, this space can be transformed into a cozy retreat that balances functionality and aesthetic appeal, ensuring that every square foot is utilized to its fullest potential.

30 feet by 60 feet 30×60 house plan

themeloader.com

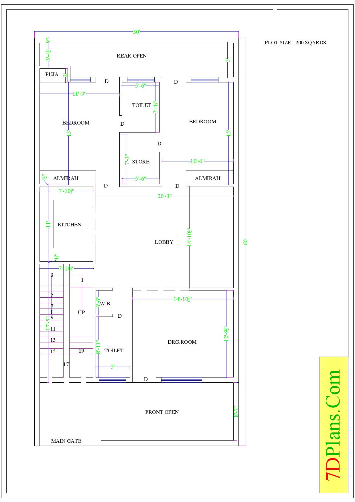
House Plan Of Plot Size 30’x60′ Feet

When considering a house plan for a plot size of 30’x60’, you’re looking at a total area of 1,800 square feet, which offers ample space for a comfortable living environment. This layout is particularly popular among homeowners seeking a balance between spaciousness and efficient design. A well-thought-out 30’x60’ house plan can accommodate multiple bedrooms, bathrooms, and a generous living area, all while maximizing natural light and airflow. Whether you envision a modern, open-concept design or a more traditional layout, this size allows for flexibility in creating functional spaces that cater to your lifestyle needs. With careful planning, a 30’x60’ house can become a cozy yet functional home for families of various sizes.

House plan of plot size 30’x60′ feet

7dplans.com

30 60 Sq Feet House Plan

When considering a 30x60 house plan, it's essential to understand the layout and functionality of the space, which totals 1,800 square feet. This size offers a versatile canvas for homeowners, allowing for a variety of configurations that can accommodate families of different sizes. Typically, a 30x60 house plan can feature three to four bedrooms, two to three bathrooms, and an open-concept living area that seamlessly connects the kitchen and dining spaces. The efficient use of space in this design not only maximizes livability but also provides opportunities for outdoor extensions like balconies or patios. Whether you're looking to build a cozy family home or a stylish retreat, a 30x60 house plan can be tailored to meet your unique needs while ensuring optimal comfort and functionality.

30 60 sq feet house plan

www.housedesignideas.us

House Plan Of Plot Size 30’x60′ Feet

When considering a house plan for a plot size of 30’x60’, you’re looking at a total area of 1,800 square feet, which offers ample space for a comfortable living environment. This layout is particularly popular among homeowners seeking a balance between spaciousness and efficient design. A well-thought-out 30’x60’ house plan can accommodate multiple bedrooms, bathrooms, and a generous living area, all while maximizing natural light and airflow. Whether you envision a modern, open-concept design or a more traditional layout, this size allows for flexibility in creating functional spaces that cater to your lifestyle needs. With careful planning, a 30’x60’ house can become a cozy yet functional home for families of various sizes.

House plan of plot size 30’x60′ feet

7dplans.com

30 Feet By 60 Feet 30x60 House Plan Decorchamp Indian

When considering a 30 feet by 60 feet house plan, such as the popular 30x60 layout from DecorChamp, it’s essential to understand its spatial dynamics and design potential. This plan typically encompasses 1,800 square feet of living space, providing ample room for a comfortable and functional home. The layout often includes strategically placed rooms that maximize natural light and airflow, creating an inviting atmosphere. With the right decor and furnishings, you can transform this space into a stylish haven that reflects your personal taste. Whether you envision an open-concept living area, cozy bedrooms, or a well-equipped kitchen, the 30x60 house plan offers versatility and practicality, making it a sought-after choice for many homeowners in India.

30 feet by 60 feet 30x60 house plan decorchamp indian

www.vrogue.co

30 60 Feet House Plan

When considering a 30x60 house plan, it's essential to understand its dimensions and how they translate into usable living space. A house measuring 30 feet in width and 60 feet in length offers a total area of 1,800 square feet. This size is ideal for families seeking a balance between spaciousness and manageability. With careful design, a 30x60 house can accommodate multiple bedrooms, bathrooms, and communal areas, making it versatile for various lifestyles. Whether you're envisioning an open-concept living space or distinct rooms for privacy, this layout provides ample opportunities for customization while ensuring comfort and functionality.

30 60 feet house plan

in.pinterest.com

House Plan Of Plot Size 30’x60' Feet

When considering a house plan for a plot size of 30’x60’, it's essential to understand the layout and design possibilities that such dimensions offer. This plot size translates to 1,800 square feet, providing ample space for a comfortable living environment. A well-designed 30’x60’ house plan can accommodate multiple bedrooms, spacious living areas, and functional kitchens, all while maintaining an efficient flow throughout the home. Whether you envision a modern aesthetic or a more traditional style, this size allows for creative architectural solutions that maximize both space and natural light. Additionally, incorporating outdoor areas such as a garden or patio can enhance the overall appeal, making it an ideal choice for families or individuals looking to build their dream home.

House plan of plot size 30’x60' feet

7dplans.com

30' X 60' Feet House Ground Floor Plan Dwg File

When considering a 30' x 60' house ground floor plan, it's essential to understand the layout and functionality of the space, which totals 1,800 square feet. This generous area allows for a variety of design options, making it perfect for families or individuals seeking a comfortable living environment. A well-thought-out DWG file can provide detailed insights into the arrangement of rooms, including spacious living areas, bedrooms, and bathrooms, ensuring optimal flow and usability. Whether you’re planning an open-concept design or prefer defined spaces, a 30' x 60' house plan can be tailored to meet your needs while maximizing the potential of every square foot. In this blog post, we’ll delve deeper into the benefits of this house size and explore various design inspirations to help you envision your dream home.

30' x 60' feet house ground floor plan dwg file

cadbull.com

30 60 House Plan

When considering a 30x60 house plan, it’s essential to understand the overall square footage and how it can be utilized effectively. A typical 30x60 house plan offers a total of 1,800 square feet, providing ample space for various layouts and design options. This size is ideal for families seeking a comfortable living environment, as it allows for multiple bedrooms, spacious living areas, and even outdoor spaces. With the right design, a 30x60 house can maximize functionality while maintaining a cozy atmosphere, making it a popular choice among homeowners looking to balance space and efficiency. Whether you're envisioning an open-concept layout or distinct rooms for privacy, the versatility of a 30x60 house plan can cater to diverse lifestyle needs.

30 60 house plan

2dhouseplan.com

House Plan Of Plot Size 30’x60' Feet

When considering a house plan for a plot size of 30’x60’, it's essential to understand the layout and design possibilities that such dimensions offer. This plot size translates to 1,800 square feet, providing ample space for a comfortable living environment. A well-designed 30’x60’ house plan can accommodate multiple bedrooms, spacious living areas, and functional kitchens, all while maintaining an efficient flow throughout the home. Whether you envision a modern aesthetic or a more traditional style, this size allows for creative architectural solutions that maximize both space and natural light. Additionally, incorporating outdoor areas such as a garden or patio can enhance the overall appeal, making it an ideal choice for families or individuals looking to build their dream home.

House plan of plot size 30’x60' feet

7dplans.com

Ads